Вентиляторы охлаждени включаются сами ауди а6 с6 2.8 ccea

Тема в разделе "4F C6", создана пользователем Николай1113, 23 сен 2025.

  1. ser_gr72

    ser_gr72 Старожил

    23 окт 2006
    28.164
    Санкт-Петербург
    был Audi A6 Avant 04 2,5TDi BDG вариатор
    Ну тогда, может, расскажешь про ошибку по датчику полностью, а не только то, что она есть?
     
  2. Николай1113

    Николай1113 Новичок

    23 сен 2025
    12
    Это мне в сервере сказали что эти провода не влияют на венты
     
  3. ser_gr72

    ser_gr72 Старожил

    23 окт 2006
    28.164
    Санкт-Петербург
    был Audi A6 Avant 04 2,5TDi BDG вариатор
    А на что влияют?
    Провод какого цвета оборван?

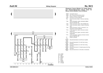
    Вот схема, по которой видно, что сигнал с датчика идет на блок климта и на блок вентиляторов.
    Называется шина L.
    Низкое давление не запустит ни компрессор, ни вентиляторы, а обрыв не запустит компессор, но включит аварийно вентиляторы.
    G395 A6 4F 2007.jpg
     
    greka и Николай1113 нравится это.
  4. Ura66

    Ura66 Участник форума

    26 авг 2022
    421
    Краснодарский край
    Ауди А6С6
    Куда пропал коля1113? Хотелось бы знать результат.
     
  5. Николай1113

    Николай1113 Новичок

    23 сен 2025
    12
    #25 Николай1113, 4 ноя 2025
    Последнее редактирование: 23 дек 2025
    т
     
  6. Николай1113

    Николай1113 Новичок

    23 сен 2025
    12
    все было банально проблема была в косе проводов 1 ч работы и все работает нормально
     
    greka нравится это.