1. Дорогие одноклубники!

    Команда Ауди Клуба поздравляет вас с наступающим Новым годом 2026!

Стройка - online

Тема в разделе "Строительство и ремонт", создана пользователем ellips, 28 апр 2014.

  1. ellips

    ellips Живу я здесь

    13 июн 2006
    2.466
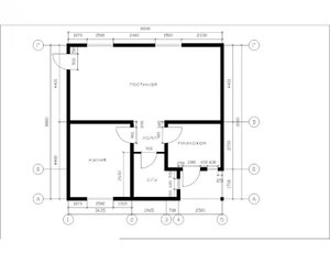
    Московская обл.
    A6 С8 50 TDI Q
    есть примеры работ?
     
    Stop hovering to collapse... Click to collapse... Hover to expand... Нажмите, чтобы раскрыть...
  2. Audist444

    Audist444 Новичок

    17 сен 2015
    35
    100 2,6 Quattro MT
    Карелия, Петрозаводск
     
  3. Audist444

    Audist444 Новичок

    17 сен 2015
    35
    100 2,6 Quattro MT
    Хотел сегодня примеры скинуть, не добрался до рабочего компа ещё, теперь только после завтра скорей всего
     
  4. Creed

    Creed Человек с украденным литцом

    8 июл 2008
    14.096
    80 1980
    Да не переживай ты, мы никуда не спешим.. ближайшие н-цать лет. :laugh:
     
  5. Creed

    Creed Человек с украденным литцом

    8 июл 2008
    14.096
    80 1980
    Чего заканчивал? В чем рисуешь?
     
  6. Audist444

    Audist444 Новичок

    17 сен 2015
    35
    100 2,6 Quattro MT
    Если честно, то рисует напарница, не помню как у неё прога называется, но делает она это просто великолепно.
     
  7. GeloV

    GeloV Старожил

    18 июл 2007
    7.211
    А4/2,0/multic/2006
    Мда... Что, совсем не интересны орудия вашего труда? :shock:
     
  8. Audist444

    Audist444 Новичок

    17 сен 2015
    35
    100 2,6 Quattro MT
    Итак...))) проги:
    автоКАД
    архиКАД
    хаусКреэйтор
     

    Вложения:

    • медгора заказ7.jpg
      медгора заказ7.jpg
      Размер файла:
      44,6 КБ
      Просмотров:
      67
    • медгора заказ5.jpg
      медгора заказ5.jpg
      Размер файла:
      36,8 КБ
      Просмотров:
      69
    • ДОМ  кровля.jpg
      ДОМ кровля.jpg
      Размер файла:
      30,3 КБ
      Просмотров:
      68
    • 36.jpg
      36.jpg
      Размер файла:
      54,4 КБ
      Просмотров:
      64
    • 35.jpg
      35.jpg
      Размер файла:
      48,4 КБ
      Просмотров:
      65
    • 34.jpg
      34.jpg
      Размер файла:
      50 КБ
      Просмотров:
      61
    • 33.jpg
      33.jpg
      Размер файла:
      77,9 КБ
      Просмотров:
      67
    • 32.jpg
      32.jpg
      Размер файла:
      76,8 КБ
      Просмотров:
      69
    • 31.jpg
      31.jpg
      Размер файла:
      55,8 КБ
      Просмотров:
      69
    • 30.jpg
      30.jpg
      Размер файла:
      73,3 КБ
      Просмотров:
      59
    • 29.jpg
      29.jpg
      Размер файла:
      59,7 КБ
      Просмотров:
      63
    • 28.jpg
      28.jpg
      Размер файла:
      27,7 КБ
      Просмотров:
      62
    • 27.jpg
      27.jpg
      Размер файла:
      43,7 КБ
      Просмотров:
      56
    • 26.jpg
      26.jpg
      Размер файла:
      52,3 КБ
      Просмотров:
      64
    • 25.jpg
      25.jpg
      Размер файла:
      52,3 КБ
      Просмотров:
      60
  9. Audist444

    Audist444 Новичок

    17 сен 2015
    35
    100 2,6 Quattro MT
    ещё примеры
     

    Вложения:

    • 24.jpg
      24.jpg
      Размер файла:
      56,3 КБ
      Просмотров:
      61
    • 23.jpg
      23.jpg
      Размер файла:
      56,9 КБ
      Просмотров:
      55
    • 22.jpg
      22.jpg
      Размер файла:
      75 КБ
      Просмотров:
      62
    • 21.jpg
      21.jpg
      Размер файла:
      52,3 КБ
      Просмотров:
      54
    • 3.jpg
      3.jpg
      Размер файла:
      33,3 КБ
      Просмотров:
      56
    • 2.jpg
      2.jpg
      Размер файла:
      42,3 КБ
      Просмотров:
      66
    • 1.jpg
      1.jpg
      Размер файла:
      53,6 КБ
      Просмотров:
      61
  10. Audist444

    Audist444 Новичок

    17 сен 2015
    35
    100 2,6 Quattro MT
    Надеюсь ответил на ваши вопросы
     
  11. Дюхарик

    Дюхарик Живу я здесь

    2 апр 2009
    3.816
    А6/C5 2.4BDV Q 02г
    Вот, я понимаю, человек пришел показал пример работ, в отличии от некоторых с авторскими проектами.
    Есть конечно над чем поработать.
    В частности расстановке опор и страпил под стандартный шаг (утеплитель).
    С точки зрения расхода материала(утеплителя) не рационально.
    Не все же мне Элипса критиковать.)))
     
  12. Audist444

    Audist444 Новичок

    17 сен 2015
    35
    100 2,6 Quattro MT
    А что с расстановкой стоек не так, как раз под утеплитель, чтобы в плотную
     
  13. Дюхарик

    Дюхарик Живу я здесь

    2 апр 2009
    3.816
    А6/C5 2.4BDV Q 02г
    #613 Дюхарик, 22 сен 2015
    Последнее редактирование: 23 сен 2015
    Не везде.
    В плотную я так понимаю это размер 580-590-598, а у вас много отличных от этих размеров.
    Я бы расставлял немного по другому, не как у вас, с точки зрения расхода материала.
    Те кто не работал на стройке они могут на это и не обращать внимание, им же пофиг сколько надо утеплителя это не их проблема, а у заказчика другое видение.
    И расстановка размеров конечно не идет ни в какие рамки!
    Возможно это требования заказчиков, но уж больно безграмотно расставлено!
    Теперь я понимаю почему в институте дрючат за расстановку размеров, их привязку и расположение, и прочее, именно для того, чтоб не делать таких ошибок, со стороны очень безграмотно смотрятся.
    И такое ощущение, что проекты делали разные люди.
     
  14. Creed

    Creed Человек с украденным литцом

    8 июл 2008
    14.096
    80 1980
    Начинается извечный халивар проектировщиков со строителями? Прикольно.
     
  15. Creed

    Creed Человек с украденным литцом

    8 июл 2008
    14.096
    80 1980
    Только проектируете или есть опыть проектного надзора, строительства? Короче ботаны или в сапогах по колено в говне тоже лазили?
     
  16. Дюхарик

    Дюхарик Живу я здесь

    2 апр 2009
    3.816
    А6/C5 2.4BDV Q 02г
    Если судить по чертежам то вряд ли.
    Один раз бы стойки расставили по свои чертежам их матом бы покрыли и больше бы косячить так не захотелось!
     
  17. Audist444

    Audist444 Новичок

    17 сен 2015
    35
    100 2,6 Quattro MT
    Где размеры не правельные, это все без утепления, когда с утеплением, то делаем от середины до середины 640, как раз убирается по пол доски и получается ровно 600, а то и 599
     
  18. Audist444

    Audist444 Новичок

    17 сен 2015
    35
    100 2,6 Quattro MT
    Опыт есть, и не малый. Стройка идет полным ходом, сам лично руками работал на стройке с 2000 года. Девочка, которая чертит, говорит, что возможно просто для примера накиданы были размеры. а так обычно все точно, так что не наезжайте на нас товарищи, всё у нас хорошо и отзывы только положительные от заказчиков:thumbup:
     
  19. Дюхарик

    Дюхарик Живу я здесь

    2 апр 2009
    3.816
    А6/C5 2.4BDV Q 02г
    Ни кто не наезжает.
    Просто прокаментировал то что ты предоставил на всеобщее обозрение.
     
  20. mitrich1980

    mitrich1980 Участник форума

    15 янв 2013
    440
    Москва
    Golf 6
    фундамент и армокаркас